ブログ
1/100に愛を込めて、、
リノベーションとは 建築 貫十
建築の世界にはたくさんの専門用語があります。
その中でも設計でよく使う用語、現場でよく使う用語など、様々なものがあります。
1/100 は設計がよく使う用語で「ヒャクイチ」と言います。
「ヒャクブンノイチ」ではありません。
1/50は「ゴジュウイチ」です。
1/100(ヒャクイチ)というのは図面を描くときの縮尺を表します。
実際のサイズの1/100(百分の一)で用紙に表現します。
実際の寸法が1Mの場合、図面では1cmで表現します。
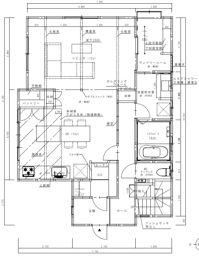
一般的に「ヒャクイチ」と言えば、1/100のサイズで描いた平面図のことを指します。

上記のような図面になります。
私たちgreen建築工房では1/100をとても重要視しています。
それは「基本設計」とも言われ、細かなデザインの手前の段階になります。
住宅の場合であれば、家族構成やライフスタイルをもとに大まかなレイアウトを考えていきます。
因みにこのレイアウトすることを「ゾーニング」と言います。
このゾーニングがとてもとても大切です。
お客様の暮らしを想像しながら、どれだけリアルに思い描けるか、、
この1/100の図面で大切な要素はほとんど入れ込めると考えています。
平面図ではあるのですが、私たち設計者の頭の中では立体的なイメージができあがっています。
実際にその空間の中にいるかのように右を見たり、左を見たり、上を見上げてみたりします。
頭の中のバーチャルな世界の中で、光の入り方や、素材のイメージまで作っていきます。
なので、「1/100」の作業は集中しないとできず、気づいたらあっという間に時間が経っていることが多いです。
建築の施工事例などは、おしゃれなデザインがインスタグラム等でも人気ですが、
私たちは、色やデザインより先に、光の入り方、風の抜け方、動線の使いやすさ、目線の高さ、コンセプト等を注入する1/100を一番大切にしています。
今月はリノベーション見学会も開催しておりますので、興味のある方はお気軽にリノベーションを体感してみてください。

